Дом по адресу Краснодар, , за 12000000 р.

Адрес Краснодар
Цена 12 000 000 р.
Площадь дома 0 м2, участка 0 м2
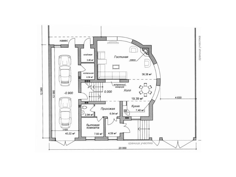
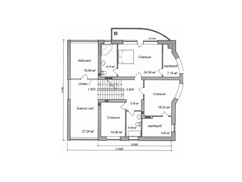
Продается дом рядом с ул. Красных Партизан пересечение Ботанический Сад им. Косенко (ориентир сельхоз институт) напротив супермаркет Табрис! Материал стен-монолит кирпич. Крыша металлочерепица PURAL. Дом построен для себя! В 2010 году полностью построен, то есть дал усадку и можно делать ремонт. Городская прописка, газ по меже. Центральная канализация и вода. На первом этаже гараж. Кухня 54 метра, всего 7 комнат, 4 санузла. Полноценная жилая мансарда. Теплые полы, радиаторы немецкие, мощные кондиционеры Mitsubishi. Зимний сад, витражные окна Rehau brilliance brilliant, настоящий камин выполненный по всем правилам. Есть закупленные материалы для отделки.
Объявление № 8864540
Дата подачи:
21 июля 2017 г. 23:37
Дата обновления:
21 июля 2017 г. 23:37
Просмотров 206 Хотите продать быстрее?

Продавец
Иван
email: info@key-house.net
Показать номер телефона
Пожаловаться
Комментарии:
Добавить